В других городах официальных офисов компании ВИРМАК нет!
(есть случаи работы под нашим брендом непорядочных конкурентов)
В других городах официальных офисов компании ВИРМАК нет!
(есть случаи работы под нашим брендом непорядочных конкурентов)
В других городах официальных офисов компании ВИРМАК нет!
(есть случаи работы под нашим брендом непорядочных конкурентов)
пн-пт
9:00 до 18
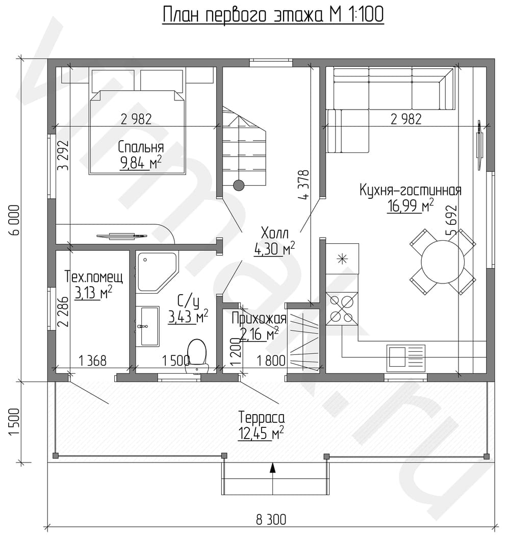
Мы с радостью предоставим Вам готовые проекты по лучшим ценам!
подать документы для получения разрешения на строительство.
самостоятельно начать строительство или приобрести
готовый домокомплект
По нашим проектам мы уже вели строительство, а значит,
значительно снижен риск Вашего самостоятельного строительства.
Самая лучшая цена за проект!!!
Для проектирования и строительства
зданий из кирпича, монолита,
разных видов блока,
просим Вас посетить наш сайт:
100proekt.ru
вариант возможного конструктива от ВИРМАК по вашему желанию узлы и материалы могу быть изменены
(тип фундаментов на выбор)*
Устройство ж/б свай, деревянного ростверка и sip полы
ж/б буроналивные сваи Ф 250 мм, проф. труба 100*100
мм, арматура 12 мм.
Устройство ростверка из пиломатериала общим сечением 146*138 мм (146*92). Монтаж
перекрытия
пола первого
этажа из СИП панелей из ЦСП размером 2700*1200*170
мм с
антисептированным
калиброванным
пиломатериалом камерной сушки (46*140 мм).
ж/б буроналивные сваи Ф 250 мм, проф. ж/б лента,
ж/б перекрытие.
* Фундамент на выбор (стоимость типа фундаментов
одинакова при
отсутствии
уклона на участке)
Монтаж наружных стен первого этажа и каркасов несущих перегородок
из СИП панелей из ЦСП размером 2700*1200*168 мм с антисептированным калиброванным пиломатериалом камерной сушки (46*140 мм). Монтаж каркасов несущих перегородок из пиломатериала 38*89 мм (76*89 мм).
пиломатериал 1-го сорта естественной влажности, антисептированный (стропила 50*150 мм, обрешетка, поперечная обрешетка), пароизоляция А, D, утеплитель 150 мм, софиты (С-8 профиль), кровля - металлопрофиль (металлочерепица).
Электроснабжение (устройство опусков в стены, прокладка эл кабелей ВВГнг, выделение групп, монтаж эл щитка, монтаж УЗО, монтаж автоматов) из расчета 3 точки на помещение по экспликации (две розетки + выключатель)
Вентиляция (кухня, санузел/санузлы, фановая труба) естественная вытяжная (разводка труб, монтаж проходных элементов в крыше и кровле, монтаж колпаков/навесов)
Отопление (разводка труб с подготовокой для установки концевых приборов)
Водоснабжение и канализация (разводка труб с подготовокой для установки концевых приборов
Устройство мансардных окон в кровле (крыше).
Устройство крыльца – ступени.
Устройство террасы на первом/втором этаже.
Устройство балкона.
Устройство козырька над террасой, балконом.
Устройство эркера (малые архитектурные формы).
Устройство в крыше «шале».
Устройство окна/балкона- «кукушка» в крыше
мансардного этажа.
Устройство водосточной системы.
Зашивка цокольного пространства листами ЦСП/профилем С8.
Наружная отделка фасада
Устройство звукоизоляции межэтажного перекрытия; (от 3х этажей).
Устройство внутренних каркасных (не несущих) перегородок с монтажом листовых материалов (ГКЛ, ГСПВ, ЦСП) и устройством утеплителя.
Тип фундамента зависит от геологии участка, геодезии участка, подъездных путей к участку, района строительства и других факторов:
При подборе типа фундамента мы также выполняем:
— это полностью готовый теплый контур дома. В данном случае дом полностью готов к монтажу внутренних инженерных сетей, звукоизоляции
* В данную комплектацию не входит фундамент. Его тип и стоимость определяется индивидуально в зависимости от особенностей вашего участка.
— материал готов для монтажа стен и укомплектован по проекту. В данном случае дом полностью готов к сборке стен, перегородок, а также каркаса межэтажного перекрытия.
Цокольное перекрытие – 465 784 (только для свайного типа фундамента) – утепленный каркасный пол с обвязкой ростверком и сплошной настил листового материала (готовность под чистовую отделку). Сборка в стоимость не входит
| Характеристика домокомплекта для перевозки в евро фуре | |||
| Панели из ППС, т | Панели из ИЗОВЕР, т | Объём домокомплекта, м3 | |
| 12,4 | 13,2 | 72 | |
* В данную комплектацию не входит фундамент и крыша. Его тип и стоимость определяется индивидуально в зависимости от особенностей вашего участка.
* «характеристика еврофуры» длина-13,6м ширина-2,45м, высота-2,5 м, объём-80м3, грузоподъёмность-до 20т
Профиль белый VEKA WXS-60 Стандарт, 2-х камерный стеклопакет от 24 мм, москитные сетки, отливы, подоконники
Информация в данном проекте и состав применяемых материалов актуальны для Краснодарского края
Стоимость строительства и состав применяемых материалов для Московской области, Республики Крым и других регионов уточняйте, пожалуйста, по телефонам или электронной почте, указанной в разделе "контакты". Позвольте также предложить Вам воспользоваться "Калькулятором строительства". Обязательно укажите ближайший регион проведения строительных работ. Нужна консультация? Звоните прямо сейчас или оставьте заявку при помощи "кнопки связи".
К небольшому изменению цены могут привести: уклоны на участке, сложные подъездные пути, отсутствие электрического питания и т.п.
Все проекты, размещенные на сайте, являются эскизными и могут быть исходным материалом для создания проекта, согласно Вашим пожеланиям и рекомендациям.
Крышу мы выполняем из различных материалов, применяя в том числе СИП панели. В качестве кровельного материала мы используем: металлочерепицу и профиль, битумную и керамическую черепицу, фальцевую кровлю собственного производства. Также производим кровельные-фальцевые сэндвич панели.
При внешних отделочных работах на наших с вами домах мы применяем различные материалы, придавая фасадам неповторимый вид. Но наш конек - это фасадные термопанели с гибким клинкером собственного производства.
В межэтажных перекрытиях в качестве несущих лаг мы применяем двутавровые балки собственного производства с влагостойкой 24 мм. фанерой в сердечнике.
А в качестве звукоизоляционного материала мы применяем эковату собственного производства на основе базальта. Плотность нашей эковаты составляет 70- 80кг/м3!
Наши стеновые панели из ЦСП 12 мм! Шириной- 600! Шаг обрусовки в два раза чаще, чем у других. В качестве обрусовочного (соединительного) пиломатериала мы применяем клееную термостойку! (65х 140мм). Теперь никаких мостов холода и кручения пиломатериала! Термостойка нашего производства - это высокотехнологичный продукт.
В качестве утеплителя помимо полистирола мы применяем каменную мин. плиту ISOVER. Класс горючести такого утеплителя НГ- негорюч. Данный утеплитель имеет потрясающие акустические (шумоизоляционные) характеристики!
Мы строим дома на любых фундаментах по Вашим пожеланиям: буроналивные свайные, ленточные, винтовые и т.д.
Наш обвязочный брус (ростверк) выполнен из калиброванного клееного пиломатериала собственного производства и защищен снаружи ЦСП листом!
Кровля может быть построена из бруса 150х50мм или SIP панелей. В качестве кровельного материала можно использовать: металлочерепицу, битумную и керамическую черепицу. Также производим кровельные шовные сэндвич-панели.
Потолок состоит из двутавровых балок 250 мм, а шаг монтажа балок - 600 мм.
Трехслойная внешняя стеновая панель состоит из:
• два листа цементно-стружечной плиты 12 мм с обеих сторон
• внутренний теплоизоляционный слой с толщиной 148 мм двух типов: полистирол ПСБ-25 (плотностью 25 кг/м3) или минеральная вата ISOVER (плотностью 64 кг/м3).
Ростверк изготовлен из калиброванного клееного бруса и защищен снаружи цементно-стружечной плитой